Nomadic space
Type:Commision Date:2016.6-2016.8 Location: Hangzhou Status: Schematic Design Partner: Huan Fang, Shifan Deng, Yuxing Chen
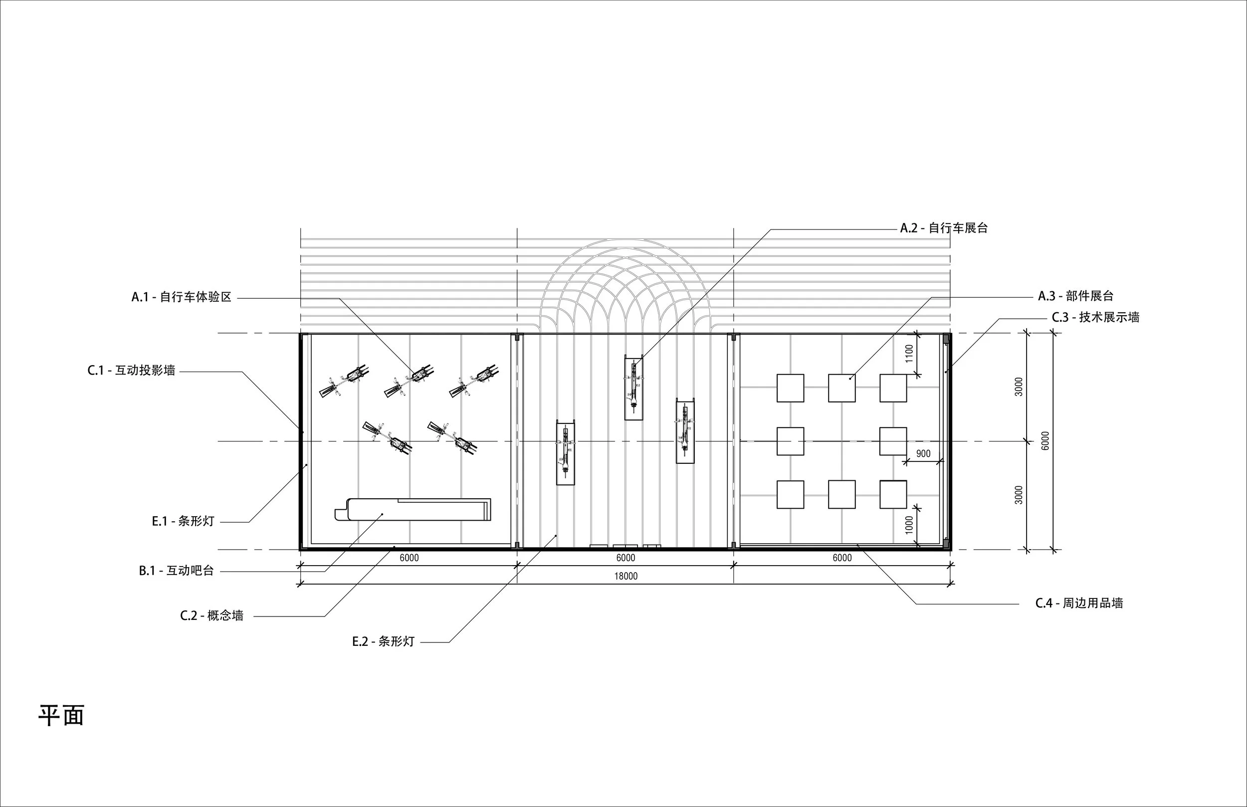
UMA is a new established smart bicycle brand in Hangzhou, China. Its name reflects three key value they are celebrating with the product series, Urban, Mobile, Actor. It's a bicycle made for urban life, for mobile people, and for adventurers who are endeavoring to act. To accommadate the showcasing and social events for UMA bikes, we are committed to design the flagship retail in Hangzhou city where they initiate their ideas.
Feature 1
The following is placeholder text known as “lorem ipsum,” which is scrambled Latin used by designers to mimic real copy. Phasellus sodales massa malesuada tellus fringilla, nec bibendum tellus blandit. Nulla eu pretium massa. Class aptent taciti sociosqu ad litora torquent per conubia nostra, per inceptos himenaeos.
Feature 2
The following is placeholder text known as “lorem ipsum,” which is scrambled Latin used by designers to mimic real copy. Nullam sit amet nisi condimentum erat iaculis auctor. Nulla eu pretium massa. Nullam sit amet nisi condimentum erat iaculis auctor.
Feature 3
The following is placeholder text known as “lorem ipsum,” which is scrambled Latin used by designers to mimic real copy. Vivamus a ante congue, porta nunc nec, hendrerit turpis. Nulla lectus ante, consequat et ex eget, feugiat tincidunt metus. Fusce at massa nec sapien auctor gravida in in tellus. Donec eget risus diam.

