Peripeteia 反转剧
Type:Competition Date:2016.4 Location: Shanghai,China Status:Third Prize Awarded Partner: Huan Fang, Wenrui Xiong, Fanzheng Dong
戏剧作品中精彩的高潮往往在反转剧情部分,在此次设计中,我们追求类此反转剧情效果的设计思路,用反转手法艺术地融合若干文化要素,力求凸显建筑空间的戏剧性变化特点和非同寻常的观演体验
临江立面
概念图解
概念图解2
中庭
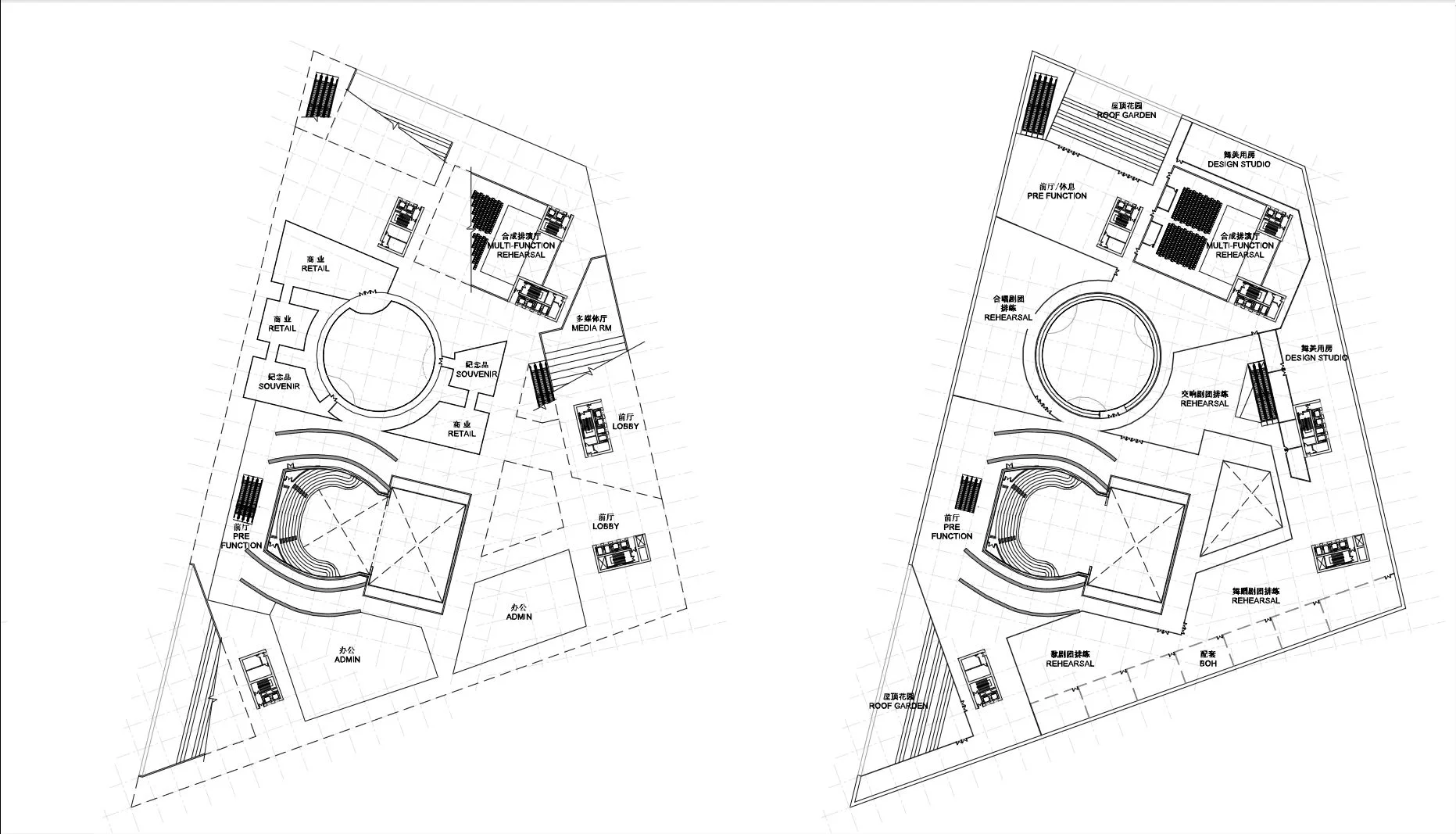
功能图解
鸟瞰
总平面
