TRANSFORMING MEDIA CENTER
Type:Undergraduate Thesis Location:Beijing,China Date:2013.2 -2013.6 Status: Awarded-Selected Excellent Work
"To create a new worldwide Performing District in the traditional performing area in Beijing, we have to consider the issue of how to inherit the specificity of traditional space."
click image to enlarge
1. After researching on the network pattern of street in 1986, we proposed a general re-development of the district. The traditional theater district could traced back to the beginning of last century. And most importantly, unnatural changing took placed in 1986. Design Process would be based on city texture of that time.
History of evolution of street pattern
Master Plan of re-development
Words mapping of site plan
2. Secondly, maintaining existing blocks in 1986 as revised space for office and transforming the space between blocks as new space for performing.
Bird Eye view of selected performing district
Performing space of Media Center Theater
Taking the central group of buldings as the new media center, Building scale development would be focused on space and construction based designing. Outdoor space was designed to be transformed into avant-grade performing space where more and more modern content would be shown on. The contrast between old city context and new application of space should be emphasized dramaticly.
Roof Plan of the Media Center
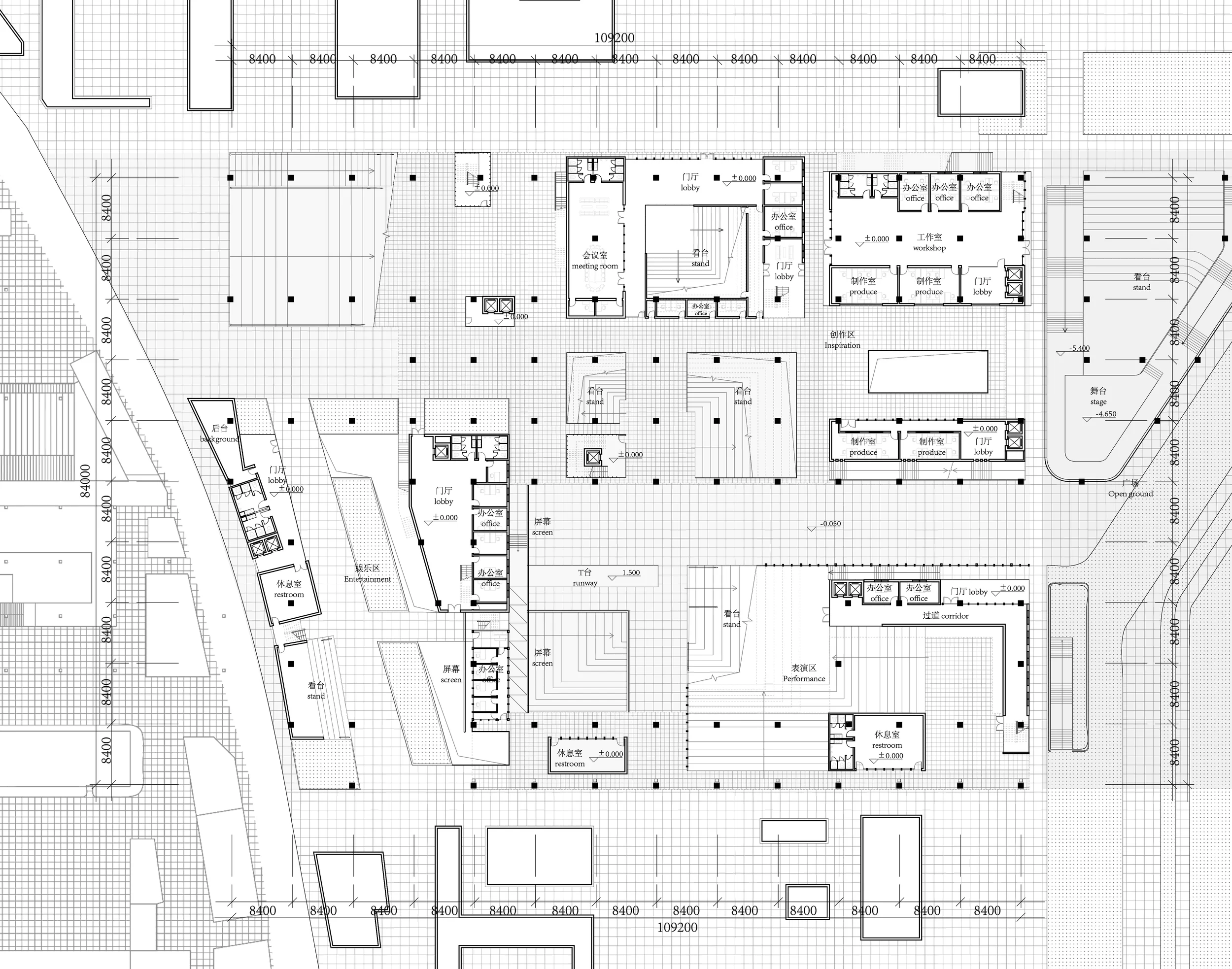
1st Floor Plan of the Media Center
Based on the original city context, principle of distribution of buildings clusters would keep while relationship between would transformed into a brand renewal showplace.The new media center is distributed into several zones serving as different roles in the process of producing and displaying multiple content.
3. Main space-the performing stage-cross section and details of mechanic system and devices. Moving system offer more possibility for different type of performance and give more tolerance for various way of watching performance.
Performing stage of Cross section
Detail drawing of moving stage
Live show picture
4. 3D interactive model of Moving machine.
For more details of model, go to Modelo.
